24.09.2025
_bearb-kompr--.jpg)
Einladung zum Spatenstich am 10.10.
Nach jahrelanger Vorbereitung geht es jetzt auch mit dem Bau des Wohngebäudes los - mit OB, Unterjesinger Wein, Selbstgebackenem, Hüpfburg, Live-Musik. Herzliche Einladung
23.09.2025
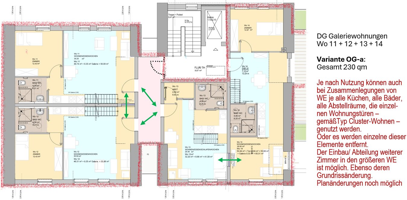
Auch Gemeinschaftsgrundrisse möglich
Bis kürzlich waren nur Kleinwohnungen (und die Pflege-WG) vorgesehen. Jetzt gehen auch Cluster- und Gemeinschaftswohnen. Und anpassbare Wohnungsgrößen im Lebenslauf
23.09.2025
Architektur: jede Menge optimiert...
Im Baugesuch April 2022 standen eigentlich Architektur, Grundrisse und Flächen fest. Aber wir haben die 9 Monate Werkplanung gründlich für viele Optimierungen genutzt
23.09.2025
Halbmarathon beim Geld fast geschafft....
Bei der Finanzierung stehen wir kurz vor dem Durchbruch: der Erfüllung der KSK-Bedingungen für die Freigabe der Bank-Darlehen. Und kommen damit in immer sichereres Fahrwasser
14.09.2025
Zündend vermittelt: warum unsere Scheune so wertvoll ist
Die Scheuer Unterjesingen war beim "Tag des offenen Denkmals" mit dabei – eine prima Gelegenheit für alle, sie fachkundig kennenzulernen. Mit Gesprächen, Vorträgen, Essen und Trinken... alles bestens besucht und substanzreich...
08.09.2025
Fundamentarbeiten Scheune
Bei der Scheune haben wir mit den Bauarbeiten begonnen - teilweise gleichzeitig mit den Abbrucharbeiten der beiden Bestandshäuser. Es geht sichtbar voran
05.09.2025
BaWü-Denkmal-Zuschuss
Kein großer, aber immerhin: weiterer Förderbeitrag für die Scheune so gut wie sicher: vom BaWü-Landesamt für Denkmalschutz
01.08.2025

Abbruch-Osthaus
Jetzt wollen - und müssen - wir zeigen, dass wir die Finanzierung stemmen werden.Um nicht der Bank bis zu 4.5% in den Rachen zu werfen, geben wir lieber attraktive 3% für Privatdarlehen an Euch. Zeichnungsfrist nur bis 30.9.!
01.08.2025
Sonderdarlehen
Jetzt wollen - und müssen - wir zeigen, dass wir die Finanzierung stemmen werden. Um nicht der Bank bis zu 4.5% in den Rachen zu werfen, geben wir lieber einen guten Teil davon für Privatdarlehen an Euch. Zeichnungsfrist nur bis 30.9.!
15.07.2025
.jpg)
Abbruch Haus Nr. 71
Mitte Juli, 5 Wochen nach "Baubeginn"-Feier, 15 zupackende ehrenamtliche Arbeitseinsätze später: Das erste der beiden Bestandshäuser ist abgerissen. Eine Mini-Bildergalerie
02.07.2025
KONTEXT:wochenzeitung
Ausführlich und gut gemacht: der Artikel über uns in der KONTEXT:wochenzeitung. Die wöchentliche Beilage der tageszeitung meint: "Projekte wie dieses bräuchte es überall. Unterjesingen könnte das Vorbild sein"
14.06.2025
_bearb.jpg)
Frohes Schaffen 4 & 5
Während andre in den Pfingstferien am Strand liegen, ... geht's in den Abbruchhäusern munter weiter
07.06.2025
_bearb-500kb.jpg)
Frohes Schaffen 3
Am Abend vorher die schöne Baubeginn-Feier... aber am Morgen drauf standen Jung und Alt schon wieder auf der Matte...
06.06.2025
Baubeginn-Feier
Darauf haben wir nun viele Jahre hingearbeitet. Dass der Baubeginn tatsächlich kommt - darauf hätten sich in den letzten Jahren nicht mehr alle verwettet... - ein heiterer Bilderbogen
30.05.2025

Frohes Schaffen 2
Abbruchunternehmer Uwe Maichle hat's taxiert: Rund 30.000 € lassen sich beim Entrümpeln, Rausreißen, Sortieren sparen. Das wollen wir hinkriegen....
26.05.2025
Grundstückskauf notariell vollzogen
Einerseits Endpunkt einer langen Reise voller Hürden. Andrerseits Startpunkt für die ganz konkrete Umsetzung des Projekts!
19.05.2025
GV mit Aufbruchstimmung
Im Vergleich zur letzten Generalversammlung im Juni 2024 wie ausgewechselt: voller Optimismus kurz vor dem Baustart
19.05.2025
Einladung zur Generalversammlung 19.05.2025
Auch noch-nicht-Mitglieder sind herzlich willkommen. Zur sicher bislang spannendsten Generalversammlung der Genossenschaft. Und dem Zusammensitzen und Plaudern danach
15.05.2025
Diesmal in der Seniorenbeilage "die Kleine"...
...auch wenn es alles andere als ein betuliches Altersprojekt werden soll: Unser Projekt findet immer wieder Aufmerksamkeit, und das freut uns!
10.05.2025
Planoptimierung: Pflege-WG-Grundriss wird flexibler
Damit das Haus Jahrzehnte lang gut funktioniert, muss es nicht nur dauerhaft gebaut sein. Sondern auch flexibel genug für sich ändernde Verhältnisse
08.05.2025
Blogbeitrag in der "Wohnlage"
Im Blog "Wohnlage" geht's um alle möglichen Themen rund um Wohnen... meist: rund um klügeres neues Wohnen. Da freut es uns, dass Unterjesingen im aktuellsten Beitrag im Zentrum steht
11.04.2025
Werkplanung voll im Plan
Die Bankgespräche absorbieren uns grad ziemlich. Aber es geht auch sonst überall voran, nicht zuletzt bei der Werkplanung...
30.03.2025

Öffentliche Veranstaltung 30.03.25: zur Pflege-WG
Herzlich willkommen an alle, die sich vor allem für die Pflege-WG interessieren. Cordula Körner (Foto: Mitte) bringt uns viele Infos mit - bei Kaffee und Kuchen
29.03.2025
Wir gehen mit der Vermietung nun breiter in die Öffentlichkeit
Bei der Vergabe der Wohnungen müssen wir nun mehr Tempo machen. Meldet Euch also gern schon bald. U.a. die Banken machen Druck...
29.03.2025
Der Darlehenstyp für Sicherheitsorientierte
Wer der Geno Geld leiht, fragt auch nach der Sicherheit. Neu bieten wir an, erst 2026 einzuzahlen. Bis dahin sind nämlich ganz viele Zweifel abgeräumt
26.03.2025

Vernetzung mit Profis der Pflege- und Älterenberatung
Einhelliger Tenor: das wird ein tolles Projekt für Ältere, für Angehörige, aber auch für die Fachkräfte: Und wir weisen Rat- und Wohnungssuchende gern drauf hin
15.03.2025

Premiere: Unterjesingen packt handfest an
Beim Abbruch der Bestandshäuser und bei der Scheuer: Alle Unterjesinger:innen sind herzlich eingeladen, alle können was einbringen. Mitte März wurde gestartet
10.03.2025

Denkmalschutz-Stiftung bewilligt Fördergeld
Kommt genau zur richtigen Zeit: die Nachricht über bis zu 100.000 € Fördermittel von der Deutschen Stiftung Denkmalschutz! (Bild: Anstoßen bei unserer Charme-Offensive lang vor Bewilligung...)
19.02.2025
Genossenschaft berichtete im Ortschaftsrat
Gremium interessierte sich dafür, wo das Projekt grad steht, wie es weitergeht, was es braucht.
05.02.2025

Archäologische Grabung blieb ohne Befund
Kommen Gebeine eines Keltenfürsts zutage? Römische oder sonstige Zeugen prähistorischer Besiedelung? Wir mussten graben....
24.01.2025
Vor-Glühen an der Scheune bestens angekommen
Informatives, geselliges und schmackhaftes Warmwerden mit dem Platz und der Scheuer... die künftige Ortsmitte für Alle schonmal gemeinsam bespielt
20.01.2025

Wohnungen gesucht - jeder Tipp herzlich willkommen
Nein - so lustig wie auf dem Bild ist es für die betroffenen Menschen in den beiden Abriss-Häusern eben gar nicht - sie verlieren schon im März oder April ihren Wohnraum. Helfen Sie uns mit, guten Ersatz zu finden?
17.01.2025
Grundstück vor der Scheuer gerodet
Im Februar beginnen archäologische Grabungen. Außerdem wollen wir ja bald Vorglühen an der Scheuer. Für all das musste das Grundstück von Gestrüpp befreit werden... und Gabi Göhring ist wahrscheinlich schon bei der nächsten Aktion...
Vor-Glühen an der Scheune: Fr., 24.01., 17-20 Uhr
Bisher nur ein leeres Grundstück, bald eine neue Ortsmitte... mit ihrem heute noch unscheinbaren Mittelpunkt: der alten Scheuer. Bei Feuerschalen, dampfendem Suppentopf, heißen Getränken und brühwarmen Infos wollen wir schon mal mit all dem warm werden... herzlich willkommen!
12.12.2024
Alle Gremien einig: eG darf Grundstück kaufen
Nach dem Meilenstein ist vor dem Meilenstein: Nun sind wir auf dem Weg zum notariellen Kaufvertrag..., wenn die finanzielle Basis die Stadt bis dahin überzeugt
Grundstücksverkauf im Gemeinderat
Lange Zeit war eine Erbbaurechts-Lösung angepeilt. Nun aber geht es in Riesenschritten auf den Kauf zu - für die Geno ein Meilenstein!
29.11.2024
Das war zunächst mal der letzte Info-Abend
...aber nur für dieses Jahr. Wieder mit kompetenten Infos, wieder mit hervorragenden Weinen - diesmal von Familie Müller. In deren stimmungsvollem Besen. Und diesmal mit einem Ehrengast...
27.11.2024
Archäologische Funde in Boden und Keller?
Rund um die 350 Jahre alte Scheuer könnten noch viel ältere Funde verborgen sein - wir müssen graben.
Willkommen zu unseren Veranstaltungen
Sie können uns und das Projekt im Oktober und November bei ganz verschiedenen Veranstaltungen kennenlernen (Bild: vor der Entringer Scheuer)
22.11.2024
Bürger:innen nehmen Scheuersanierung selbst in die Hand
Der dritte Abend in der Herbstkampagne - zu Gast in der heimeligen umtriebigen Entringer Scheuer
17.11.2024
Die Scheuer wachküssen...
Der zweite Akt unserer Herbstkampagne: ein ebenso temperamentvolles, informatives wie schmackhaftes Event - mit Schwerpunkt Scheuer.
10.11.2024

sen'FIT-Messestand war voller Erfolg
Zum Auftakt unsere Herbstkampagne waren wir erstmalig auf der Seniorenmesse - und freuen uns über viele gute Gespräch (Bild: unser liebevoll gestalteter Stand, mit Gabi Göhring (li.) und Sabine Emmerich (re.)
02.10.2024
Wohnungsvergabe läuft gut
Noch ist die Auswahl möglich. Aber wenige Wochen nach Start der Wohnungsvergabe ist das Interesse groß.
18.09.2024
Neuer und alter Ortschaftsrat wollten's wissen
Zur konstituierenden Sitzung war unser Projekt zu Gast - und stellte sich mit vollem neuen Schwung vor.
20.08.2024

Denkmalschutz-Stiftung bereist Scheuer
Hochkarätige Denkmalschutz-Delegation hat unsere Scheune besucht. Gutes Omen für bis zu 100.000 € Fördermittel von der Deutschen Stiftung Denkmalschutz?
02.08.2024
Alte Substanz und neue Gesichter
Ausgerechnet rund um die alte Scheuer entsteht derzeit neue Aufbruchstimmung fürs Gesamtprojekt. Die personelle und organisatorische Verstärkung für die hochkomplexen Aufgaben kommt im rechten Moment
11.07.2024
Fördergeld eingeworben
Das verleiht uns endlich wieder richtig Schwung: nestbau wirbt 280.000 € für die Scheuer ein - damit rückt der Baustart in greifbare Nähe.