Momentan läuft die heiße Phase der Werkplanung.
- Nachdem die Grundentwürfe schon seit über 3 Jahren stehen - und mit der Baugenehmigung 07/2023 ja auch abgesegnet wurden - wird jetzt an jedem Detail weitergeplant, dass baubare Lösungen gefunden werden.
- Außerdem macht Haefele Architekten in den nächsten Tagen auf dieser Basis auch die Ausschreibungen für die Handwerker-Gewerke. Ungeheuer spannend: was bekommen wir für Angebote? Sie werden zeigen, wie groß das Interesse und die Kapazitäten der Betriebe sind, ob sie gern dabei sein wollen, und ob sie dazu auch konkurrenzfähige Preise aufrufen.
- Uli Otto von der nestbau AG sagt: das macht Spaß mit dem erfahrenen Architekturbüro Haefele! Seitens der Geno ist immer wieder Aufsichtsrat Philipp Linder mit bei den Abstimmungsgesprächen - als Bauingenieur ist er selbst Fachprofi. Er macht u.a. auch die Tragwerksplanung fürs Projekt im Statikbüro Felix Mildner. Natürlich nicht für lau. Aber zu einem Überzeugungstäter-Preis! Danke - solche Akteure suchen wir nun auch für den ganzen Bau.
Was könnte aus der Pflege-WG alternativ gemacht werden
...ob Gottfried Haefele und Susanne Hug durchgängig auch Spaß mit Projektsteuerer Uli Otto haben... mhm... müssten wir sie selbst fragen....
Da war eher Stirnrunzeln, als er Anfang 2025 sagte: Lasst uns prüfen, ob wir nicht die - bestehenden und genehmigten - Grundrisse mit einfachen Mitteln etwas flexibler konzipieren können.
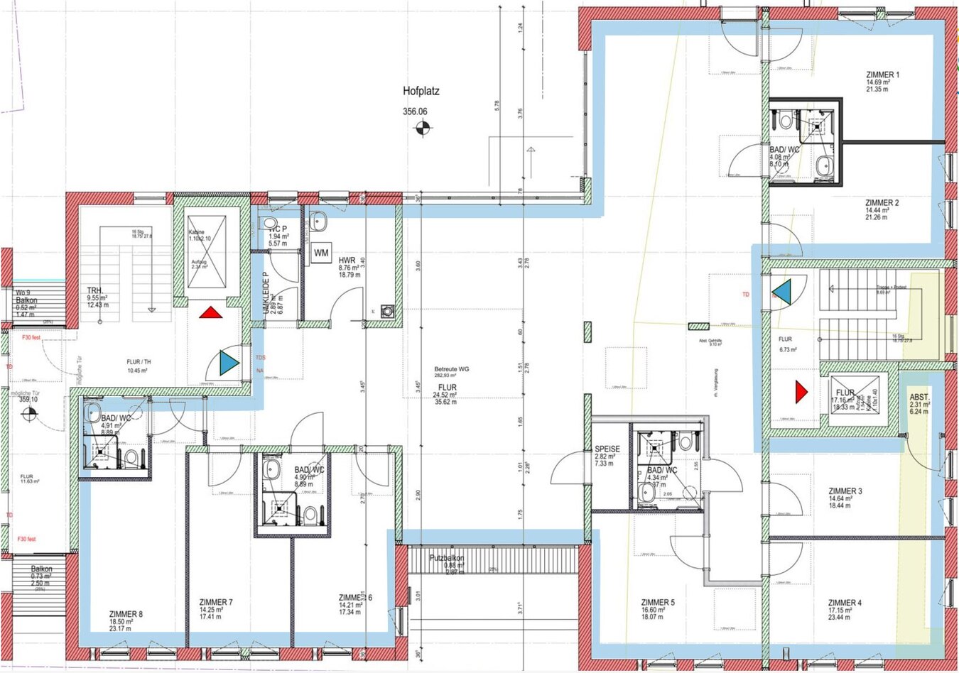
Architektin (und Unterjesingerin) Susanne Hug legte nun spannende Vorschläge vor - hier am Beispiel der Pflege-WG im 1. Obergeschoss: Hier zunächst der bisherige Plan - die Pflege-WG mit 8 Plätzen:
Es ist ein sehr attraktiver großzügiger Grundriss,
- mit 283 qm
- mit 4 Bädern und zusätzlichem WC
- mit Zimmern zwischen 14.3 und 18.5 qm
- und mit dem Brücken-Übergang zur Dachterrasse des Eingangs-Neubaus an der Scheuer.
Uli Otto aber bestand auf einem Plan B:
- für den Fall, dass irgendwann vielleicht das aktuelle Pflege-WG-Konzept nicht mehr zulässig sein könnte (so wie jetzt in Rottenburg ganz aktuell ein noch junges Pflegeheim geschlossen wurde, weil der Gesetzgeber Einzelzimmer verlangte - baulich wäre ein Umbau viel zu teuer geworden...),
- und auch für den Fall, dass das Projekt je finanziell scheitern sollte: dann sollte es unbedingt so flexibel und nutzungsoffen sein, dass es eben auch für einen Käufer interessant wäre.
- Uli Otto malt überhaupt keinen Teufel an die Wand - sondern ist einfach nur sehr nüchtern. Und dazu gehört für ihn auch systematisches Risikomanagement. Dabei wird für jede Projektphase der nächsten Monate immer auch überlegt: "was passiert, wenn...".
Das Ergebnis:
Aus der Pflege-WG könnten mit Mini-Aufwand 3 Familienwohnungen werden
Dieser Entwurf ist derzeit unser Favorit: 3 Wohnungen mit 101-78-105qm 
- Alle drei Wohnungen haben jeweils 4 Zimmer, die Zuschnitte sind sehr vernünftig und zugleich flächensparsam.
- die drei Küchenzeilen können in unmittelbarer Nähe eh vorhandener Wasser- und Abwasserstränge vorgerüstet werden,
- die grüne und die gelbe Wohnung haben nur je 1 Bad - nicht optimal, aber o.k. Die rote Wohnung ist etwas anders: mit 2 Bädern und einem WC luxuriöser, mit einer abgetrennten Küche (in Plan: HWR) konventioneller konzipiert.
Testweise hat Architektin Susanne Hug auch eine weitere Variante konzipiert, die auch eine sehr große Wohnung enthielte.

Aktuell sind wir noch im Diskussionsprozess, was dann letztlich als Option vorgesehen wird.
Aber damit wir uns richtig verstehen: Doch, klar: wir streben mit voller Kraft unverändert die 8er-Pflege-WG an! Denn Unterjesingen braucht dringend eine solche Wohnpflegeform - mitten drin im Leben. Und in Unterjesingen.